概要

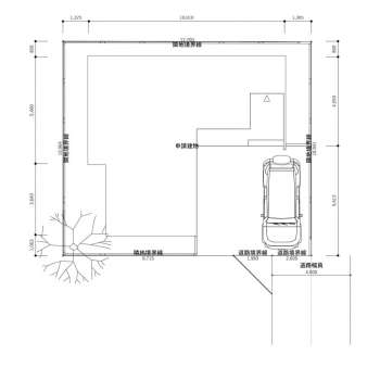
| 所在地 | 新潟市東区材木町129番1の内 |
|---|---|
| 敷地面積 | 139.5㎡(42.18坪) |
| 価格 | ご成約済み |
概要
【最終更新日】2025/4/16 【次回更新予定日】2025/4/23 【広告有効期限】2025/4/23
| 交通 | バス停 上木戸新町約500m(徒歩7分) |
|---|---|
| 学校区 | 牡丹山小学校(1300m)、木戸中学校(950m) |
| 用途地域 | 工業地域 |
| 建ぺい率・容積率 | 60% 200% |
| 地目 | 宅地 |
| 道路 | 東6.0m |
| 道路負担 | なし |
| セットバック | なし |
| 供給施設 | 電気:東北電力 / ガス:都市ガス / 水道:公営水道 / 下水:公共下水道 |
| 土地状況 | 更地 |
| 建築条件 | なし |
| 取引形態 | 一般媒介 |
| 引渡し時期 | 相談 |
| 会社概要 | 宅地建物取引業 国土交通大臣(1)第9588号 ハーバーエステート株式会社 新潟県新潟市中央区明石2-2-20 |
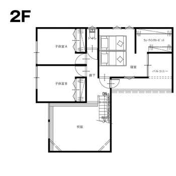
建物は、建築家とつくる家『アドハウス』が承ります。もちろん自由設計です。
※画像を拡大してご覧ください。
プランの特徴
広い玄関と自転車まで収納できるシューズクローク。
広いLDKには、オープンアイランド型のキッチンを配置。
大きな吹抜けからはたくさんの光が入り込む。
洗面水廻りもゆったり配置してあり収納にも困らない。
寝室に面したバルコニーでは雨にぬれずに読書も可能。
| 建物スペック | 敷地面積:139.35㎡(42.15坪) 1F床面積:59.62㎡(18坪) 2F床面積:45.54㎡(13.75坪) 延床面積:105.16㎡(31.75坪) 施工面積:122.55㎡(37.00坪) |
|---|
※上記参考プランは一例です。プランはお客様が自由に決定できます。



